我們先通過圖片了解下塑膠制品以及注塑成型加工:

1.塑膠制品 2.注塑成型加工
以下闡述模具大水口小水口對比
大水口進膠:
優點:充型快,壓力小,補縮能力強,適用于粘度高,流動性差的塑料,壓力損失少.
缺點:封澆時間長,周期慢,內應力大,對塑件影響大,難切除.

大水口(2板模)模架示意圖A
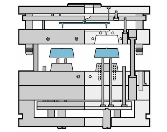
細水口進膠:
優點:剪切,摩擦,降粘,便于充型,紋理清晰效率周期快,減少內應力,防止變形破裂,對制品影響少,易切除.
缺點:注射壓力要高補編能力小,壓力降低,對熱敏性塑料易分解變色,縮孔凹陷!

小水口(3板模)模架示意圖B
上海模具設計公司總結為,注塑模具的大水口和小水口在尺寸、填充效果和適用注塑件等方面存在不同,選擇適當的澆口取決于產品的特殊需要和塑料材料的類型以及客戶產品設計對外觀的要求,以確保制造出的產品質量符合客戶所需。